(Symbol BAS02264) ObiektWarszawa, Mokotów
Mokotów - biurowiec do rewitalizacji
Antares to atrakcyjna nieruchomość inwestycyjna zlokalizowana w samym sercu Mokotowskiej Dzielnicy Biznesowej w Warszawie Przyt ul. Marynarskiej 11. Budynek znajduje się przy Rondzie Unii Europejskiej, bezpośrednio naprzeciw centrum handlowego Westfield Mokotów, co zapewnia doskonałą ekspozycję oraz świetną dostępność komunikacyjną samochodem i transportem publicznym.

Budynek posiada 13 kondygnacji nadziemnych oraz 2 kondygnacje podziemne. Oferuje łącznie 10 626 mkw powierzchni do wynajęcia (GLA) oraz 85 miejsc parkingowych w garażu podziemnym. Średnia powierzchnia typowego piętra wynosi 817 mkw. Wysokość budynku to 45 m. Parametry użytkowe obejmują współczynnik zagęszczenia 10 mkw na osobę oraz wydajność wentylacji 30 m3 powietrza na godzinę na osobę.

Budynek był wcześniej siedzibą polskiej centrali Havas Media i obecnie znajduje się w stanie shell and core, co oznacza pełną swobodę aranżacji wnętrz pod potrzeby przyszłego właściciela lub najemców. Reprezentacyjne lobby oraz nowoczesna bryła tworzą doskonałą bazę do stworzenia nowoczesnego obiektu biurowego nowej generacji.
Nieruchomość jest również zgodna z miejscowym planem zagospodarowania pod funkcję edukacyjną, co umożliwia przekształcenie jej w kampus uniwersytecki z funkcją akademika lub obiektu hotelowego.

Lokalizacja zapewnia znakomitą dostępność komunikacyjną. W bezpośrednim sąsiedztwie znajdują się liczne przystanki autobusowe i tramwajowe, a około 800 metrów od budynku znajduje się stacja kolei regionalnej Warszawa Służewiec. Lokalizacja umożliwia szybki dojazd do Dworca Centralnego oraz Lotniska Chopina.
Naprzeciw budynku znajduje się Westfield Mokotów, drugie co do wielkości centrum handlowe w Warszawie, oferujące kilkadziesiąt restauracji, kawiarni i sklepów, a także duży parking publiczny. W okolicy dostępne są również sklepy spożywcze, kluby fitness, przedszkola i żłobki, co zwiększa atrakcyjność lokalizacji dla najemców.
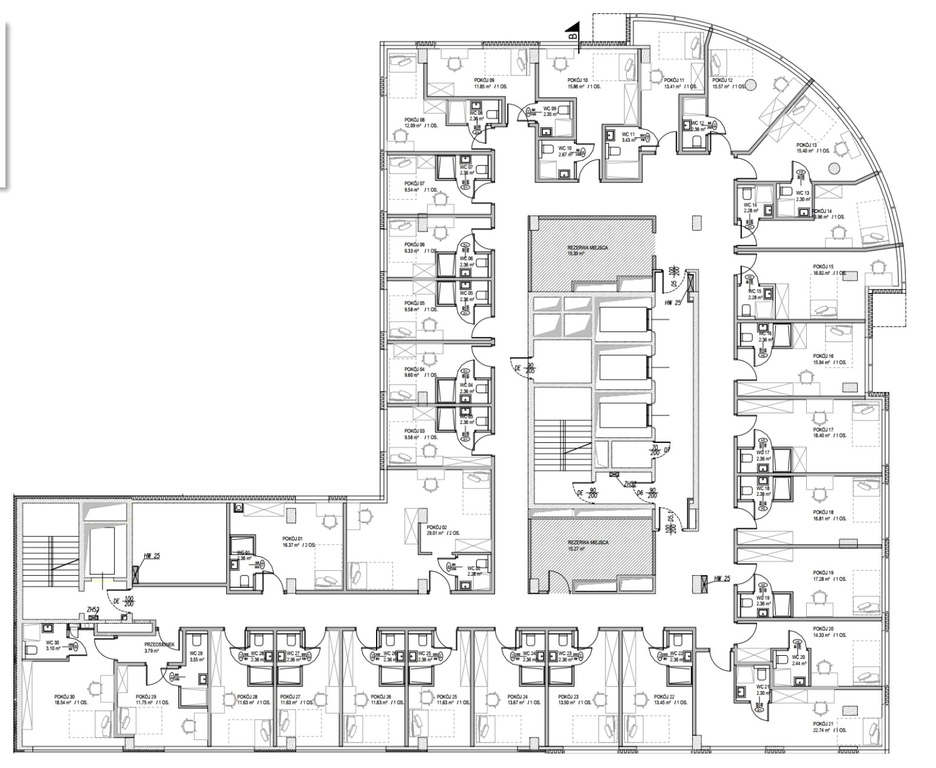
Typowe piętra zaprojektowane są w układzie open space, umożliwiając elastyczne dostosowanie powierzchni do potrzeb biurowych, hotelowych lub akademickich. Koncepcja mieszkaniowo hotelowa zakłada możliwość realizacji do 31 jednostek na piętro przy około 550 mkw powierzchni użytkowej na każdym poziomie.
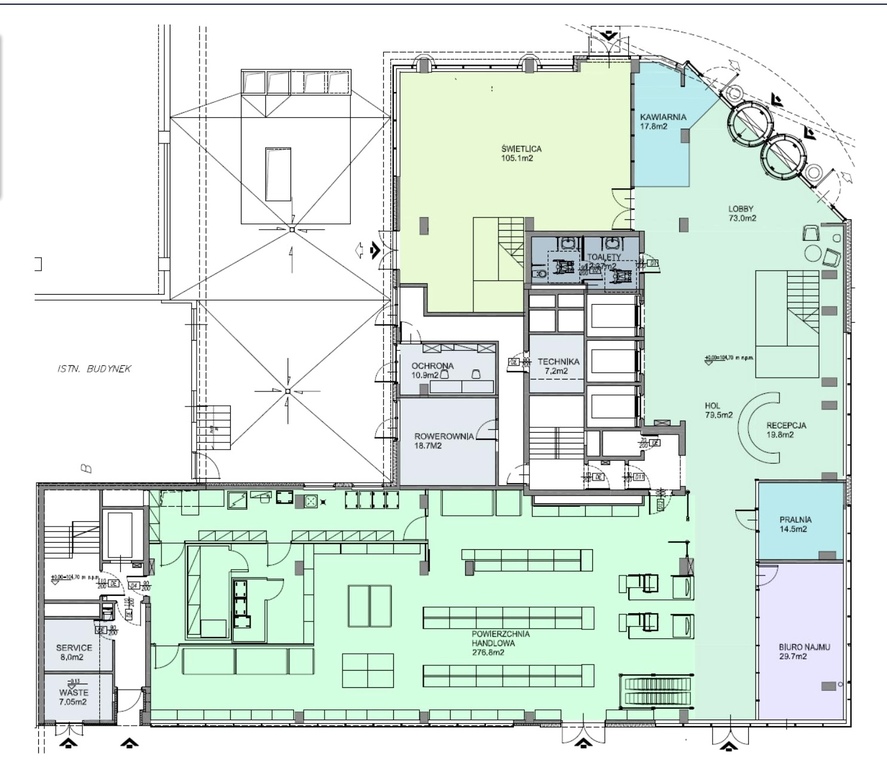
Parter budynku daje możliwość stworzenia powierzchni handlowo usługowych, co pozwala na wykreowanie aktywnej i dochodowej strefy wejściowej oraz zwiększenie wartości nieruchomości.

Cena sprzedaży budynku jest otwarta na najlepszą ofertę.
Cena wywoławcza to 14 mln EURO netto.

Antares stanowi unikalną okazję inwestycyjną w jednej z najbardziej prestiżowych lokalizacji biurowych w Warszawie, z dużym potencjałem do dalszego rozwoju i wzrostu wartości.

Treść niniejszego ogłoszenia nie stanowi oferty handlowej w rozumieniu Kodeksu Cywilnego. Treść ma charakter informacyjny i zalecamy ich osobistą weryfikację. Kontaktując się z biurem Klient wyraża zgodę na przetwarzanie danych osobowych zgodnie z przepisami ustawy z dnia 29 sierpnia 1997 roku o ochronie danych osobowych / Dz.U.Nr. 133 poz. 883/. Klientowi przysługuje prawo do wglądu do swoich danych osobowych i ich aktualizacji.

Symbol
BAS02264
Rodzaj nieruchomości
OBIEKT
Rodzaj transakcji
SPRZEDAŻ
Rodzaj rynku
WTÓRNY
Cena w EURO
14 000 000 €
Cena za m² w EURO
1 318 €
Kraj
POLSKA
Województwo
MAZOWIECKIE
Miejscowość
Warszawa
Powierzchnia całkowita
10 626, 00 m²
Rodzaj budynku
BIUROWIEC
Rok budowy
2003
Ilość pięter
13

Doradca odpowiedzialny za ofertę

Artur Worakomski

Zapytaj o ofertę